Toggle navigation
Home
Properties
Sales
Rentals
Commercial properties
Prestige
About us
Services
Contacts
en
it
en
3+ bedroom apartment for sale in Pinerolo
for sale
3+ bedroom apartment
Pinerolo
230,000 €
Previous
Next
Primal Features
Code:
V001743
City:
Pinerolo
Category:
3+ bedroom apartment
Locals:
4
Bedrooms:
2
Bathrooms:
2
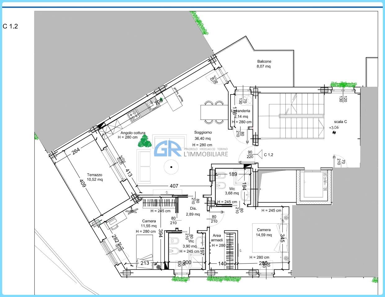
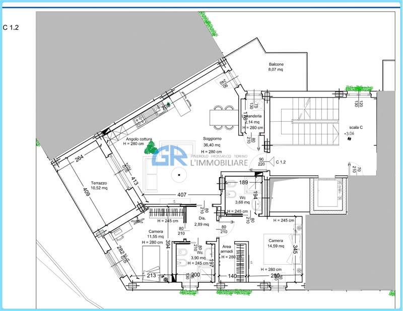
Sqm:
102
Terraces:
2
sqm Terrace:
19
Floor:
1
Year:
2025
Energetic class:
A3
Property Conditions:
New
Rank:
Elegant
View:
Open View
Orientation:
North East South
Free Sides:
3
Garden:
No
Furniture:
Not Furnished
Type living:
Living room
Kitchen:
View Kitchen
Heating:
Calories Counter
Heating Type:
Heat Pump
Type of heating system:
Floor heating
Energy source:
PV
Hot Water:
Central with Panels
Cooling:
Floor
Fixtures:
PVC triple glazed
Doors:
New
Blind:
PVC blind
Floors Living Room:
Porcelain
Floors Bedrooms:
Porcelain
Floors Kitchen:
Porcelain
Floors Bathroom:
Porcelain
Access for disabled:
No barrier
Disabled internal access:
Full access
Insulation:
Present
Thermal insulation:
External insulation
Acoustic insulation:
Floor insulation
Accessories
Air Conditioning
Elevator
Electric gate
Photovoltaic
Satellite System
Laundry
Solar Panels
Passing Car
Pedestrian Crossing
Armored door
Closet
Electric shutters
Triple glazing
Video Intercom
Map
via Nazionale, 53 - Pinerolo (TO)
Virtual tour
Video
Floorplans
Floorplan 1
Documents
2024_101030_0031.pdf (294 kb)
Keep default settings X
Use of cookies
This site uses cookies. Our (own) cookies and those of our Partners (third party cookies) are used to offer you a unique experience with us. For this reason, together with our partners, we collect and process non-sensitive information (such as the identifier of your device or the pages you visit).
At any time you can delete, modify or verify the information you share in
Cookie preference
or in our
Cookie Policy
and
Privacy Policy
.
Necessary
Functional
Profiling
Analytics
Accept all
Decline all
Accept selected
Cookie preference