Toggle navigation
Home
Immobili
Vendite
Affitti
Immobili commerciali
Prestigio
Chi siamo
Servizi
Contatti
it
it
en
PINEROLO - VILLA NUOVA COSTRUZIONE
In vendita
Villetta schiera
Pinerolo
280.000 €
Previous
Next
Descrizione
All'ingresso di Abbadia Alpina proponiamo in vendita villa di nuova costruzione in classe energetica "A" con giardino esclusivo.
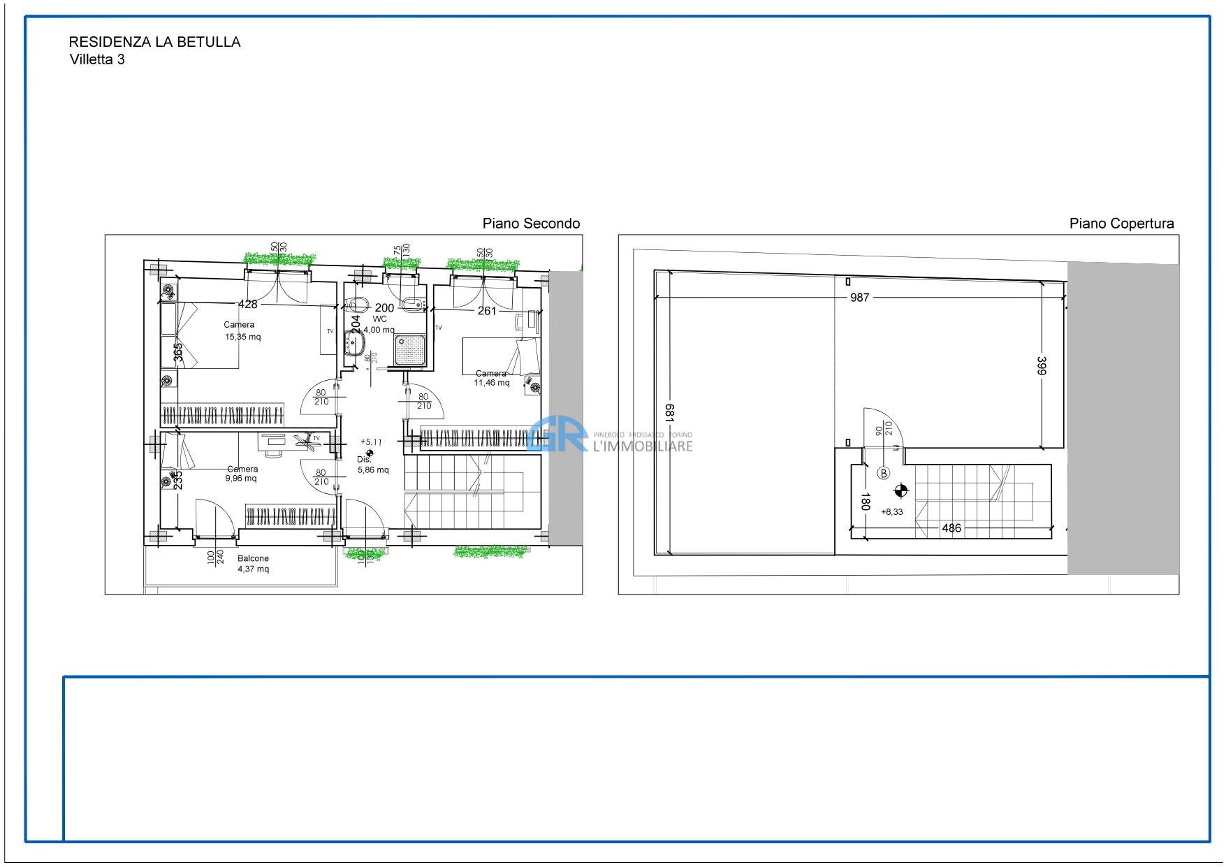
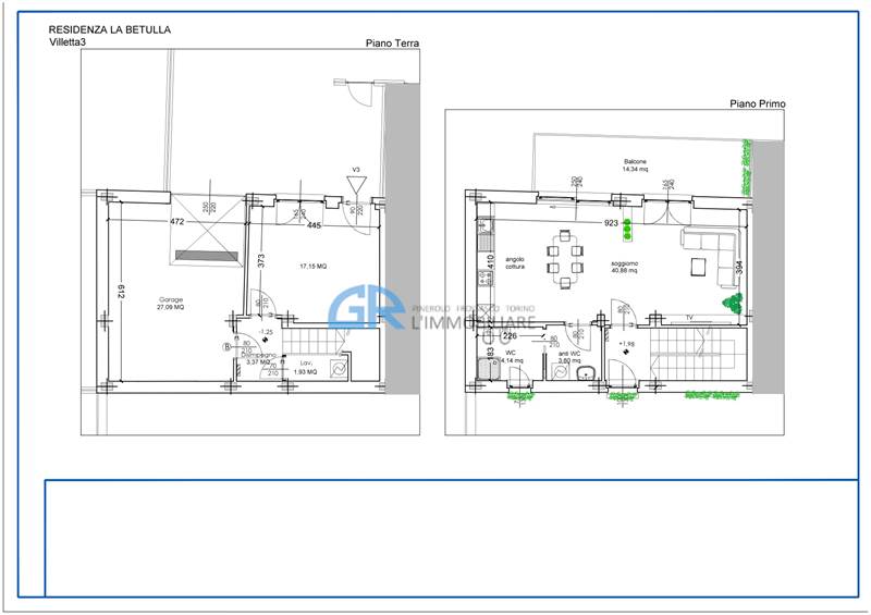
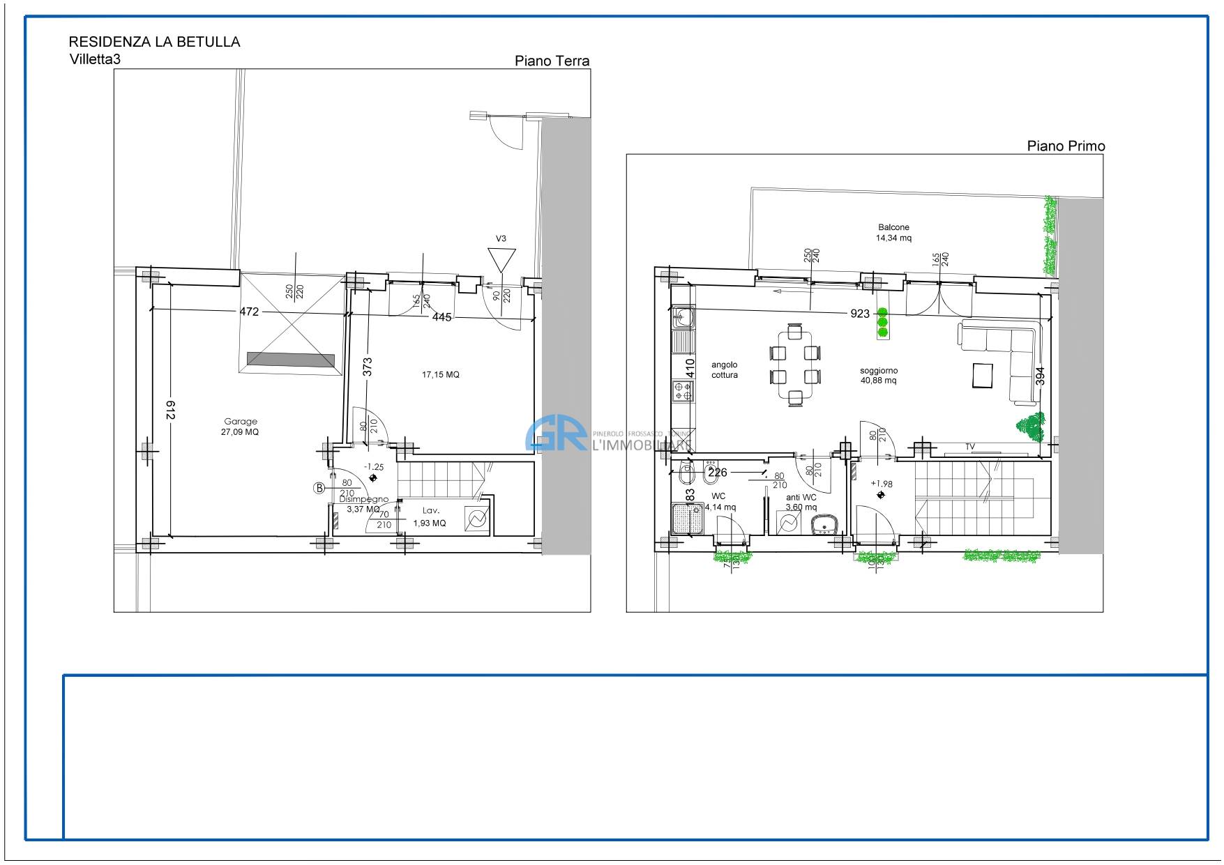
La zona giorno della villa è composta dall'ampio salone con zona cucina antistanti al terrazzo oltre a bagno finestrato con antibagno; al piano superiore è presente la zona notte, la quale è composta da 3 camere da letto e un bagno finestrato oltre ad un balcone. Presente sovrastante ampio lastrico solare in parte coperto. Presente al piano inferiore una autorimessa e locali accessori. Esternamente è presente un posto auto.
Finiture ed impianti all'avanguardia, volti a garantire un alto efficientamento energetico.Per qualsiasi informazione relativa a disponibilità, prezzi, capitolato e metrature vi invitiamo a contattarci al seguente numero: 0121.322789 o presso il nostro studio in Pinerolo - Corso Porporato n.3.
Caratteristiche principali
Codice:
V001824
Città:
Pinerolo
Categoria:
Villetta schiera
Locali:
7
Camere:
3
Bagni:
2
Mq:
181
Box:
1
Mq Box:
28
Posti auto:
1
Mq Giardino:
66
Balconi:
1
Mq Balcone:
19
Terrazzi:
2
mq Terrazzo:
68
Anno:
2025
Classe energetica:
A3
Stato Immobile:
Nuovo
Grado:
Medio
Panorama:
Vista Aperta
Orientamento:
Nord Ovest Sud
Lati Liberi:
3
Giardino:
Privato
Arredi:
Non Arredato
Tipo Soggiorno:
Salone
Tipo Cucina:
Abitabile
Riscaldamento:
Autonomo
Tipo Riscaldam.:
Pompa di Calore
Tipo Impianto:
Pavimento
Fonte Energetica:
Elettrico
Acqua Calda:
Autonoma
Raffrescamento:
Pavimento
Infissi:
PVC Triplo Vetro
Serramenti:
Nuovo
Persiana:
Oscurante PVC
Pavim. Giorno:
Gres Porcellanato
Pavim. Notte:
Gres Porcellanato
Pavim. Cucina:
Gres Porcellanato
Pavim. Bagno:
Gres Porcellanato
Accessori
Aria Condizionata
Canna Fumaria
Cancello Elettrico
Doppi Vetri
Impianto Satellitare
Ingresso Indipendente
Lavanderia
Pannelli Solari
Passaggio Automobilistico
Passaggio Pedonale
Porta Blindata
Ripostiglio
Video Citofono
Mappa
via Giustetto - Pinerolo (TO)
Video
Your browser does not support the video tag.
Planimetrie
Planimetria 1
Planimetria 2
Planimetria 3
Mantieni impostazioni di default X
Uso dei cookies
Questo sito fa uso di cookies. I nostri cookies (propri) e quelli dei nostri Partners (cookies di terzi) servono per poterti offrire un'esperienza unica con noi. Per questo motivo, insieme ai nostri partners, raccogliamo e processiamo informazioni non sensibili (come l'identificatore del tuo dispositivo o le pagine che visiti).
In qualsiasi momento potrai eliminare, modificare o verificare le informazioni che condividi in
Cookie preference
o nella nostra
Cookie Policy
e
Privacy Policy
.
Necessari
Funzionali
Profilazione
Analitici
Accetta tutti
Rifiuta tutti
Accetta selezionati
Cookie preference