GARZIGLIANA - CAPANNONE ARTIGIANALE

In vendita
Capannone
Garzigliana
198.000 €
Descrizione
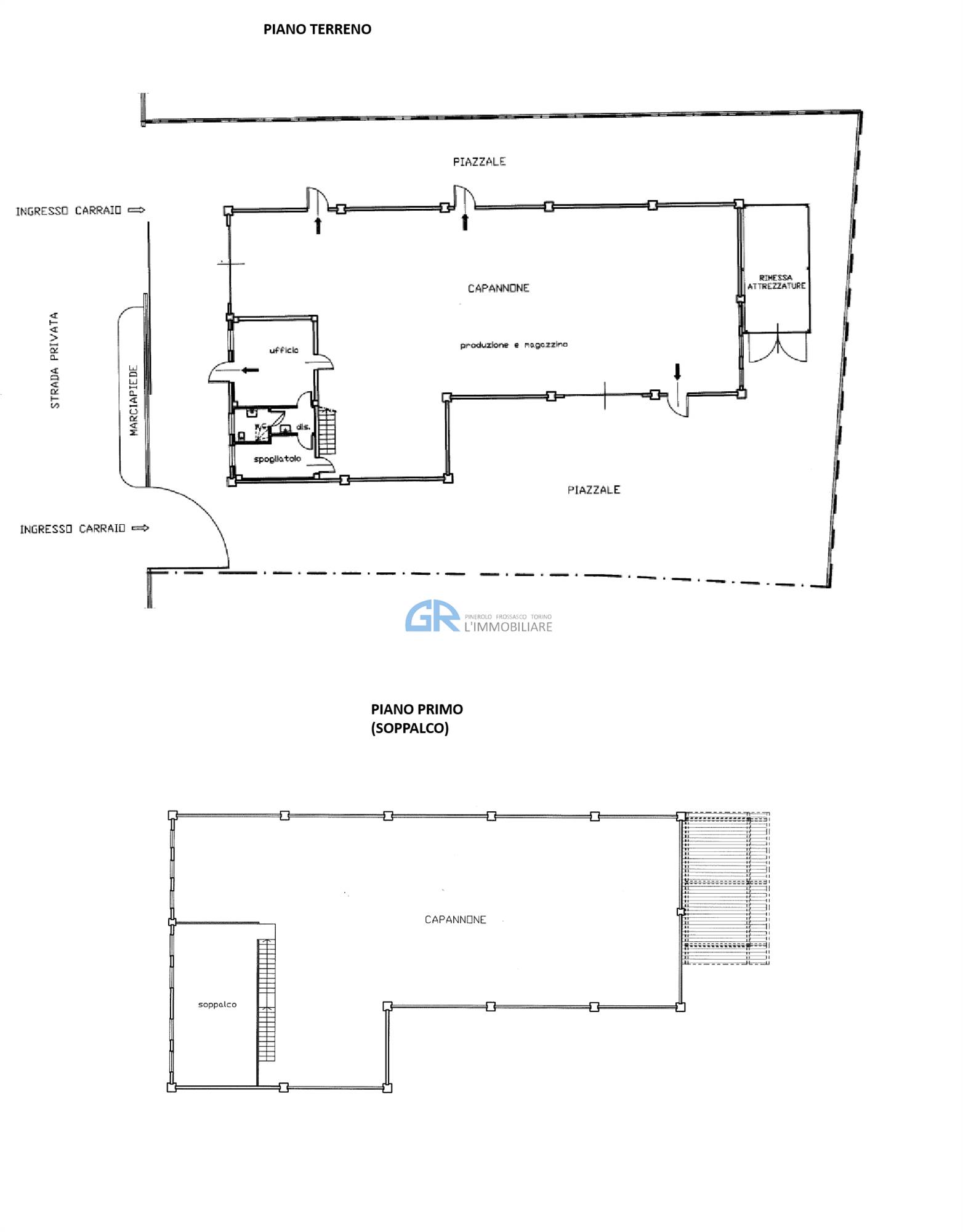
In Garzigliana - regione Conti - proponiamo in vendita un capannone artigianale di mq. 345, completo di uffici e servizi per mq. 47 oltrre a soppalco di mq. 47, ideale per attività produttive, artigianali o di deposito.

Vi è la possibilità di frazionare il capannone in due lotti, soluzione che rende l’immobile particolarmente interessante anche per investitori o per chi necessita di spazi indipendenti.

Completano la proprietà:
- piazzale esterno di mq. 644, adatto a manovra, carico/scarico e parcheggio
- tettoia chiusa di mq. 29, utilizzabile come deposito o area accessoria

L’immobile è dotato di accessi carrabili, buona altezza interna e spazi funzionali e versatili.
Caratteristiche principali
Codice:
V001807
Città:
Garzigliana
Categoria:
Capannone
Locali:
5
Bagni:
1
Mq:
468
Piano:
Terra
Classe energetica:
In fase di valutazione
Stato Immobile:
Buono
Grado:
Medio
Posizione:
Periferia
Panorama:
Vista Giardino
Orientamento:
Nord Ovest Sud Est
Lati Liberi:
4
Arredi:
Non Arredato
Serramenti:
Ottimo
Pavim. Bagno:
Ceramica
Pavimento:
Cemento
Destinazione:
Artigianale
Mq uffici:
47
Mq piazzale/corte:
644
Impianto d’irrigazione:
No
VMC:
No
Accessori
Doppio Ingresso
Passaggio Automobilistico
Passaggio Pedonale
Mappa
regione Conti - Garzigliana (TO)
Planimetrie
Cookie preference