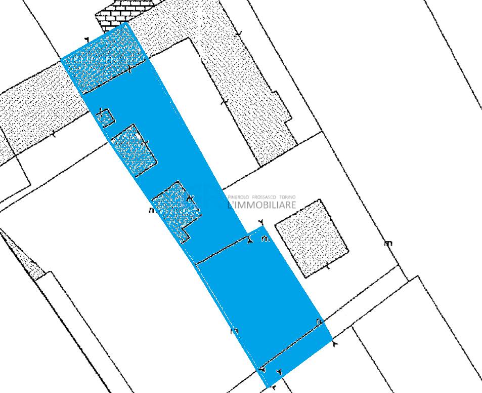
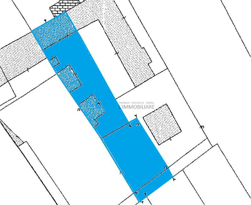
PORZIONE DI CASCINALE CON CORTILE

In vendita
Porzione di Casa
Frossasco
159.000 €
Descrizione
In Frossasco, posto in zona periferica ma comoda ai collegamenti, proponiamo in vendita una porzione di un tipico cascinale di campagna composta da 3 unità abitative.
Il fabbricato primario, composto da due appartamenti, che possono essere accorpati in un unico alloggio, si sviluppa su due livelli, è stato ristrutturato ed è così composto:
Appartamento “1”:
- al piano terreno (58 mq. commerciali) una ampia camera con soffitto a volta in mattoni con ripostiglio e una cantina;
- al piano primo (83 mq. commerciali) uno spazioso soggiorno con zona cucina caratterizzato da soffitto in legno a vista, una camera matrimoniale e due bagni finestrati con antistante antibagno oltre ad un balcone di affaccio sul cortile.
Appartamento “2”:
- al piano terreno (4 mq. commerciali) una cantina;
- al piano primo (57 mq. commerciali) una cucina abitabile, un antibagno e un bagno finestrato oltre ad un balcone di affaccio sul cortile;
- al piano secondo (58 mq. commerciali) una spaziosa camera da letto con w.c., un ampio disimpegno – volendo sfruttabile come camera – e un balcone sempre di affaccio sul cortile.
Appartamento “3”:
- al piano terreno (45 mq. commerciali) un alloggio indipendente composto di ingresso, cucina, una camera e bagno in condizioni conservative originali.
Sono inoltre compresi nella vendita vari locali accessori, fra cui uno spazioso locale di sgombero – anch’esso con uno splendido soffitto a volta con mattoni a vista, un’ampia tettoia aperta anche utile per ricovero autovetture e un'altra tettoietta aperta.

La casa si presta ad un acquisto per un utilizzo bifamigliare o per una famiglia unica.

Soluzione perfetta per poter essere abitata da subito, senza lavori.
Interessante anche la dimensione del cortile, non eccessiva ma pienamente sfruttabile.
Caratteristiche principali
Codice:
V001784
Città:
Frossasco
Categoria:
Porzione di Casa
Locali:
11
Camere:
4
Bagni:
4
Mq:
363
Mq Box:
54
Balconi:
3
Mq Balcone:
20
Classe energetica:
F
200,76 kWh/m²a
Stato Immobile:
Ottimo
Grado:
Medio
Posizione:
Campagna
Panorama:
Vista Giardino
Orientamento:
Sud Nord
Lati Liberi:
2
Giardino:
Cortile
Arredi:
Possibilità
Tipo Soggiorno:
Doppio
Tipo Cucina:
Abitabile
Riscaldamento:
Autonomo
Tipo Riscaldam.:
Caldaia
Tipo Impianto:
Radiatori
Fonte Energetica:
Metano
Acqua Calda:
Autonoma
Raffrescamento:
No
Infissi:
Legno Doppio Vetro
Serramenti:
Buono
Accesso Disabili:
No
Accesso interno disabili:
Parziale
Appartamenti:
Tre
Destinato a residenti:
Si
Accessori
Armadio a Muro
Camino
Canna Fumaria
Doppi Vetri
Ingresso Indipendente
Lavanderia
Passaggio Automobilistico
Passaggio Pedonale
Ripostiglio
Mappa
strada Vecchia di Piscina, 3/4 - Frossasco (TO)
Cookie preference