BIVIO CUMIANA - FABBRICATO INDUSTRIALE CON APPARTAMENTO

In vendita
Negozio
Cumiana
340.000 €
Descrizione
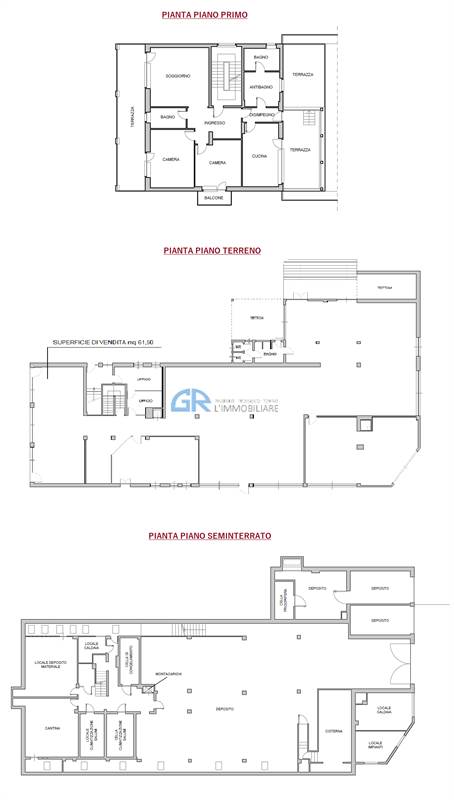
In Cumiana, zona Bivio, situato in posizione strategica e di forte passaggio, proponiamo in vendita un intero stabile così strutturato:
- al piano terreno, per complessivi 680 metri quadrati, sono presenti i locali produttivi, quali ampie zone laboratorio e scarico merci oltre alla parte frontale dedicata a negozio con superficie commerciale di 61,50 metri quadrati; sono inoltre presenti i relativi accessori (quali uffici, tettoie e servizi);
- al piano primo è presente un ampio appartamento composto da soggiorno, cucina abitabile, due ampie camere, servizi e due terrazze per complessivi 153 metri quadrati;
- al piano secondo è presente un ampio sottotetto composto da più locali;
- al piano interrato sono presenti i vari locali accessori all'attività di produzione, quali cantine, sgomberi, depositi ecc... per complessivi 546 metri quadrati.
Il lotto di terreno misura complessivamente 3.126 metri quadrati ed è completamente asfaltato e recintato.
Nella parte posteriore del cortile sono presenti gli edifici a servizio del fabbricato principale.
L'immobile è visitabile previo appuntamento.
Caratteristiche principali
Codice:
V001765
Città:
Cumiana
Categoria:
Negozio
Locali:
20
Camere:
2
Bagni:
5
Mq:
1000
Classe energetica:
G
332,21 kWh/m²a
Stato Immobile:
Buono
Grado:
Medio
Posizione:
Periferia
Panorama:
Vista Aperta
Orientamento:
Nord Ovest Sud Est
Lati Liberi:
4
Giardino:
Privato
Arredi:
Non Arredato
Tipo Soggiorno:
Soggiorno
Tipo Cucina:
Abitabile
Riscaldamento:
Autonomo
Tipo Riscaldam.:
Caldaia
Tipo Impianto:
Radiatori
Fonte Energetica:
Metano
Acqua Calda:
Autonoma
Raffrescamento:
No
Infissi:
Legno
Serramenti:
Discreto
Persiana:
Tapparella Legno
Pavim. Giorno:
Ceramica
Pavim. Notte:
Ceramica
Pavim. Cucina:
Ceramica
Pavim. Bagno:
Ceramica
Pavimento:
Ceramica
Numero Vetrine:
Tre
Destinazione:
Industriale
Appartamenti:
Uno
Metri altezza capannone:
3,50
Mq uffici:
30
Mq piazzale/corte:
3057
Accessori
Armadio a Muro
Canna Fumaria
Doppio Ingresso
Inferriate
Ingresso Indipendente
Lavanderia
Parco Condominiale
Passaggio Automobilistico
Passaggio Pedonale
Ripostiglio
Mappa
strada Torino, 50 - Cumiana (TO)
Cookie preference