Ufficio/Laboratorio in affitto a Pinerolo

In affitto
Laboratorio
Pinerolo
500 € / mese
Descrizione
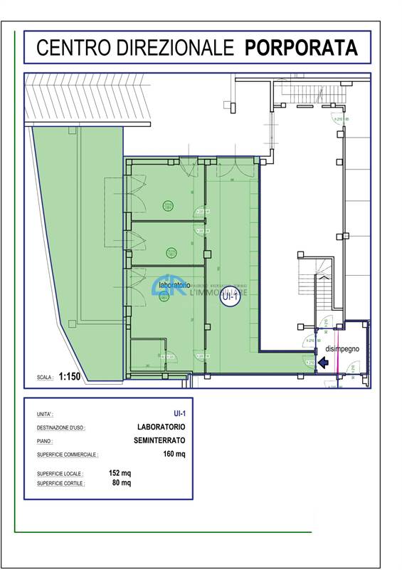
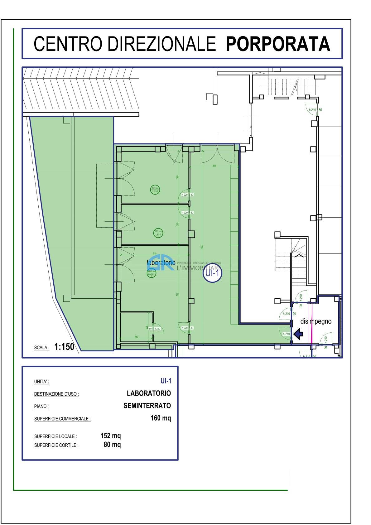
Il locale in affitto nel comune di Pinerolo, situato in un polo artigianale/commerciale, rappresenta una soluzione ideale per chi è alla ricerca di uno spazio ampio e funzionale per svolgere attività di laboratorio o ufficio. Con una superficie di 160 mq suddivisa in 4 ampi vani, il locale offre ampi spazi parzialmente arredati che possono essere facilmente adattati alle esigenze del conduttore, completa il tutto un ampio cortile/porticato a proprio utilizzo anche carrabile.
La posizione strategica del laboratorio, comoda alla tangenziale che unisce le tre valli del Pinerolese, garantisce un facile accesso e una buona visibilità per chiunque voglia avviare o ampliare la propria attività. La classe energetica assicura un elevato livello di efficienza e comfort, mentre il prezzo contenuto lo rende estremamente conveniente per chi cerca un'opportunità di investimento o di crescita professionale.
Il laboratorio al piano seminterrato rappresenta una soluzione versatile e pratica per svolgere attività di laboratorio o ufficio. Grazie alla sua posizione e alle sue caratteristiche, questo locale si presenta come una scelta ideale per coloro che cercano un ambiente di lavoro confortevole e funzionale nel comune di Pinerolo.
Caratteristiche principali
Codice:
A000462
Città:
Pinerolo
Categoria:
Laboratorio
Locali:
4
Camere:
4
Mq:
160
Terrazzi:
1
Piano:
Terra
Classe energetica:
In fase di valutazione
Stato Immobile:
Ottimo
Grado:
Signorile
Posizione:
Periferia
Panorama:
Vista Aperta
Orientamento:
Est Sud Ovest
Lati Liberi:
3
Arredi:
Semi Arredato
Riscaldamento:
Conta Calorie
Tipo Riscaldam.:
Caldaia
Fonte Energetica:
Metano
Acqua Calda:
Centralizzata
Raffrescamento:
Centralizzato
Infissi:
PVC Doppio Vetro
Serramenti:
Ottimo
Persiana:
Tapparella PVC
Pavim. Cucina:
Gres Porcellanato
Pavimento:
Gres Porcellanato
Cauzione:
Due Mesi
Canoni Anticipati:
Un Mese
Tipo Contratto:
6+6 Anni
Destinazione:
Commerciale
Accesso Disabili:
Nessuna Barriera
Accesso interno disabili:
Pieno accesso
Tipo Registr.:
Tradizionale
Mq piazzale/corte:
80
Accessori
Aria Condizionata
Armadio a Muro
Ascensore
Cancello Elettrico
Doppi Vetri
Doppio Ingresso
Passaggio Automobilistico
Porta Blindata
Rete Dati
Ripostiglio
Video Citofono
Mappa
Dei Gibuti - Pinerolo (TO)
Planimetrie
Cookie preference